Safa Jendoubi
- وكيل المبيعاتSafa Jendoubi+34 683 45 86 86+34 951 23 59 59sales@spainhomes.com
لماذا تختلف أسعار العقارات في المواقع المختلفة؟
يمكن أن تكون الأسعار الأساسية بعملات مختلفة. يتم تحديث أسعار الصرف مرتين في اليوم. الأسعار المعلنة هي الأسعار المبدئ بها، و لا يتم تضمين التكاليف الملازمة لشراء العقارات (مثل ITP أو ضريبة القيمة المضافة، ونفقات التوثيق، ونفقات التسجيل). لماذا تختلف أسعار العقارات في المواقع المختلفة؟
- اطلالة البحر
- منطقة مشجرة
- سهولة الوصول إليها
قطعة أرض مطلة على البحر في ألتيا، اليكانتي
ألتيا هي بلدية في مقاطعة اليكانتي، في منطقة بلنسية. ألتيا هي مدينة سياحية بفضل المناخ والشواطئ في المنطقة. توفر المنطقة أيضًا سهولة الوصول إلى تقريبًا جميع المرافق.
تقع الأرض في اليكانتي في التلال المواجهة للبحر الأبيض المتوسط وعلى بعد 5 كم من مارينا غرينتش وعلى بعد 7 كم من ألتيا وعلى بعد 10 كم من كالبي وعلى بعد 45 دقيقة بالسيارة من مطار أليكانتي إلتشي الدولي.
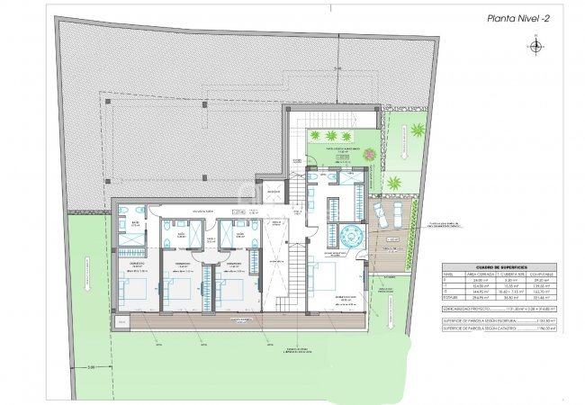
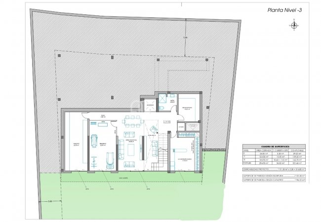
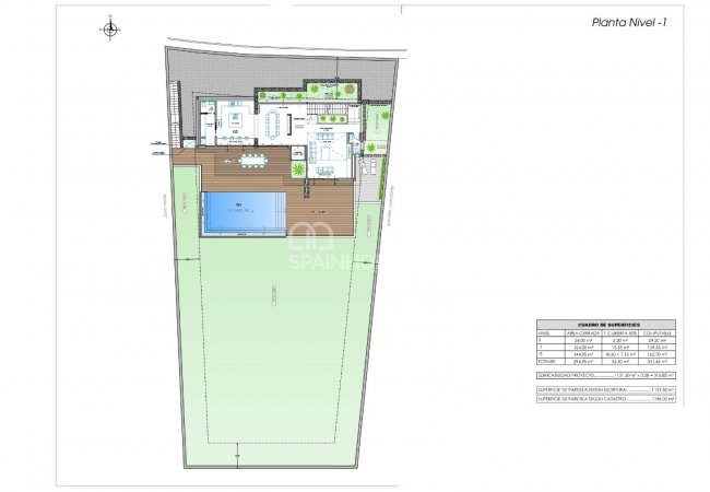
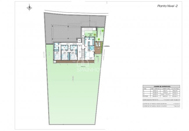
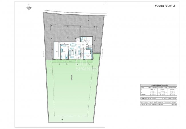
تقع قطعة الأرض الحضرية التي تبلغ مساحتها 1.131 متر مربع في منطقة التحضر الحصرية لألتيا هيلز (ألتيا)، وهي واحدة من أفضل المناطق الحضرية في أليكانتي وفي منطقة كوستا بلانكا بأكملها. تطل قطعة الأرض على مناظر لا تضاهى على البحر الأبيض المتوسط وتحيط بها المناطق الخضراء.
تبلغ مساحة قطعة الأرض 1.131 متر مربع مع إمكانية بناء تبلغ 316.82 متر مربع بحد أقصى وإشغال بحد أقصى 33٪
- المطار (50-100 كم)
- البحر (1-5 كم)
- إطلالة البحر
- إطلالة الطبيعة الخلابة
- إطلالة الجبل
- إطلالة الغابة

















































