Çağlar Girishan
- SÄLJAGENTÇağlar Girishan+34 683 45 86 86+34 951 23 59 59sales@spainhomes.com
Varför finns det olika priser på olika webbplatser?
Baspriserna kan vara i olika valutor. Växelkurser uppdateras två gånger om dagen. De deklarerade priserna är startpriserna, och kostnaderna för inköp av fastigheten (såsom ITP eller moms, notarialkostnader, registerkostnader) ingår inte. Varför finns det olika priser på olika webbplatser?

- Attraktivt läge
- Panoramautsikt över havet
- Takterrasspool
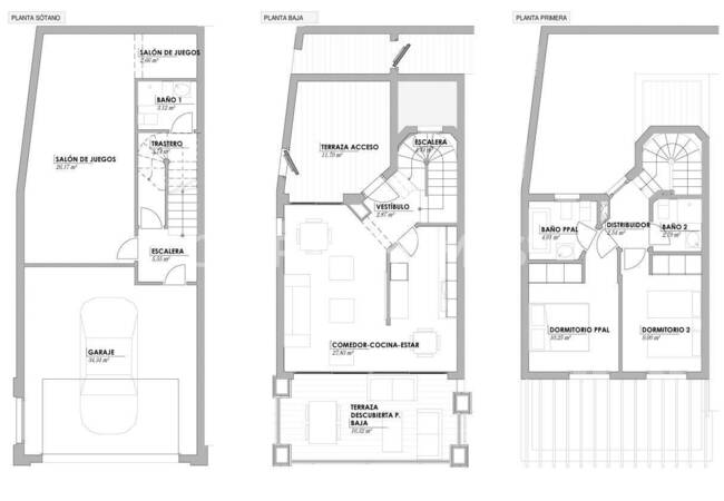
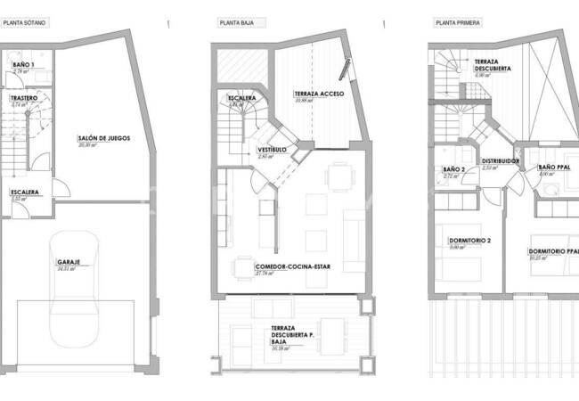
Radhus med Havsutsikt i Torrox Malaga
Dessa stilfulla radhus ligger i Torrox-området i Malaga. Torrox är ett lugnt distrikt med en avslappnad medelhavsatmosfär. Området erbjuder flera bekvämligheter, inklusive traditionella restauranger och barer. Enkel tillgång till Nerja och Malagas centrum.
Radhusen är en del av ett bostadskomplex med generösa ytor. Komplexet har en gemensam takterrasspool.
Varje hus har öppna kök och rymliga vardagsrum. Interiörerna är designade med stora fönster, skjutdörrar och privata terrasser med havsutsikt. De är också utrustade med inbyggda garderober.
Radhusen till salu i Torrox Malaga ligger 1,5 km från stranden, 15 km från Nerja, 50 km från Malagas centrum, 65 km från Malagas internationella flygplats, 117 km från Puerto Banús och 123 km från Marbella.
- Luftkonditionering
- Persienner
- En-Suite-badrum
- Öppet kök
- Dusch
- Förråd
- Terrass
- Parkering (stängd)
- Gemensam trädgård
- Gemensam pool
- I ett Komplex
- Hiss
- Flygplats (50-100 Km)
- Strand (1-5 Km)
- Hav (1-5 Km)
- Havsutsikt
- Vacker Naturutsikt
- Luftkonditionering
- Syd























































