Denna NeoVilla-modell erbjuder fyra sovrum och fyra badrum. Med sin spektakulära design visar denna lyxvilla med två våningar styrka och rena linjer. Stålbalkar och pelare, arrangerade i en tredimensionell ram, ger exceptionell styrka och stabilitet för denna villa. Detta ramverk säkerställer hela byggnadens strukturella integritet.
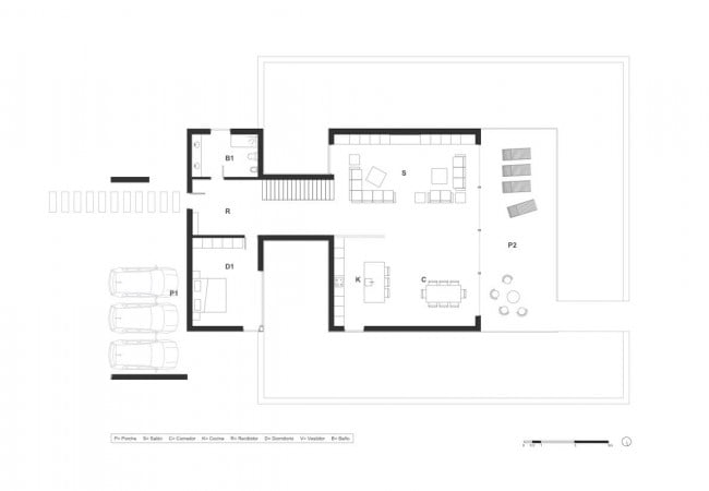
- Hall 61.12 m²
- Vardagsrum 52.15 m²
- Matsal 22.14 m²
- Kök 24.66 m²
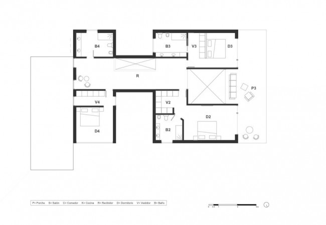
- Sovrum 1 21.88 m²
- Badrum 1 10.50 m²
- Sovrum 2 21.65 m²
- Omklädningsrum 2 7.18 m²
- Badrum 2 7.65 m²
- Sovrum 3 12.27 m²
- Omklädningsrum 3 6.78 m²
- Badrum 3 8.90 m²
- Sovrum 4 14.82 m²
- Omklädningsrum 4 7.11 m²
- Badrum 4 10.42 m²
- Terrass | Veranda 147 m²
- TOTALT ANVÄNDBAR 436.23 m²
- TOTALT BYGGT 484.17 m²
- Kort byggtid
- Frihet att välja plats
- Samtida design
NeoVilla | Sobra och Rena linjer
Spain Homes ® erbjuder en spännande möjlighet för dem som vill bygga sitt drömhus i Spanien. Våra NeoVilla-modeller stoltserar med grunder av högsta kvalitet, överlägsen konstruktionsstandard och flerskiktsisolering. Dessutom erbjuder den här NeoVilla-modellen lyxiga funktioner som exklusiva kök, lyxiga badrum med både dusch och badkar och en blandning av premiummaterial som betong, stål och trä som skapar en välkomnande, robust villa.
Denna speciella modell erbjuder fyra sovrum och badrum, med aerotermisk energi för att reglera temperaturen. Dessutom, mot en extra kostnad, kan du skräddarsy din villa med alternativ som bastu, infinitypool, ångbad eller skräddarsydd dekoration. I slutändan erbjuder Spain Homes ® chansen att bygga ditt drömhus till ett oslagbart pris på kortast möjliga tid.
























