Den här NeoVilla-modellen, konstruerad med en standardiserad process av hög kvalitet, ger dig vacker enkelhet. Dess moderna design ger ett rymligt vardagsrum på en nivå med 3 sovrum.
465.447€
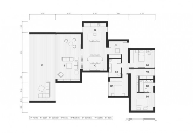
Användbart område
- Hall 8.98 m²
- Vardagsrum 34.18 m²
- Matsal 17.50 m²
- Kök 17.05 m²
- Sovrum 1 16.68 m²
- Omklädningsrum 1 6.72 m²
- Badrum 1 5.18 m²
- Sovrum 2 20.05 m²
- Badrum 2 6.76 m²
- Sovrum 3 10.87 m²
- Terrass | Veranda 51.86 m²
- TOTALT ANVÄNDBAR 193.05 m²
- TOTALT BYGGT 219.55 m²
BÄSTA 3 SKÄLEN ATT KÖPA
- Kort byggtid
- Frihet att välja plats
- Samtida design
SAMMANFATTNING
NeoVilla | Vacker enkelhet, Robust och Intim
Den här NeoVilla visar upp en modern design som stoltserar med avancerade material och ytbehandlingar, inklusive stål, betong och trä, som tjänar både form och funktion. Dess moderna estetik har naturliga linjer som sömlöst integrerar dessa element.
Denna fastighet består av en våning och erbjuder gott om boyta inomhus på 220 m², bestående av 3 sovrum, ett generöst vardagsrum, ett kök med öppen planlösning och två fullt utrustade badrum.
För en extra avgift kan potentiella köpare välja att inkludera en lyxig infinitypool, ett gym, ett turkiskt bad eller en bastu.
BE OM FLER DETALJER
























