Sandis Jozapaitis
- VERKAUFSAGENTSandis Jozapaitis+34 683 45 86 86+34 951 23 59 59sales@spainhomes.com
Warum es unterschiedliche Preise auf verschiedenen Webseites gibt?
Die Preisliste ist basiert auf Euro. Wechselkurse werden täglich aktualisiert. Die angegebenen Preise sind Anfangspreise und die mit dem Kauf der Immobilie verbundenen Kosten (wie ITP oder Mehrwertsteuer, Notariatskosten, Registrierungskosten) sind nicht enthalten. Warum gibt es auf verschiedenen Websites unterschiedliche Preise?

- Blick aufs Meer
- Große Terrassen
- Golffront
Neubauwohnungen mit großzügigen Terrassen am Golfplatz in Mijas
Die Wohnanlage befindet sich in einem der aufstrebenden Gebiete in Mijas an der Costa del Sol. Mijas ist eine zwischen Fuengirola und Marbella gelegene Stadt, die sich vom kleinen alten Ortskern am Fuße der Berge bis zur Mittelmeerküste erstreckt. Mijas ist nicht nur ein Ort, an dem man Ruhe und eine entspannte Atmosphäre genießt, sondern liegt auch in der Nähe aller Aktivitäten. Dieses Projekt befindet sich in der privilegierten Gegend von La Cala de Mijas.
Diese Golfanlage befindet sich in einer erstklassigen Lage, die friedlich und privat ist, nahe an der Natur, gesegnet mit Panoramablick, aber auch nahe an allen Annehmlichkeiten, Dienstleistungen und natürlich am kristallklaren Wasser des Mittelmeers mit feinen Sandstränden. Der nächste Strand mit einer ausgedehnten Promenade ist nur eine kurze Autofahrt entfernt, ebenso wie ein stilvolles Golf-Clubhaus, die Restaurants, Cafés und Geschäfte des charmanten La Cala de Mijas. Die von Annehmlichkeiten umgebenen Wohnungen befinden sich in der Nähe von Fuengirola und Marbella, die ein breites Spektrum an Freizeit- und Kulturangeboten bieten. Darüber hinaus sind die Wohnungen zum Verkauf in Mijas nur 30 Autominuten vom internationalen Flughafen Málaga entfernt.
Diese avantgardistische Wohnanlage mit ihrem einzigartigen modernen Design erhebt sich stolz über dem renommierten Golfplatz und bietet einen Panoramablick auf die Küste, das Meer und die Berge. Der sichere Komplex bietet moderne Wohnungen in sechs Blöcken. Das Projekt ist inspiriert von einer luxuriösen tropischen Residenz, in der Wasser und Vegetation die Hauptrolle spielen und die Außenbereiche Teil des täglichen Lebens sind. Die landschaftlich gestalteten Außenbereiche sind von Gärten umgeben, in denen Sie das wunderbare Klima und den Lebensstil der Costa del Sol genießen können. Der Komplex verfügt über einen Pool mit einer großen Sonnenterrasse, einen beeindruckenden Arbeitsbereich und einen voll ausgestatteten Fitnessraum mit Sauna für Ihr tägliches Training.
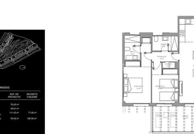
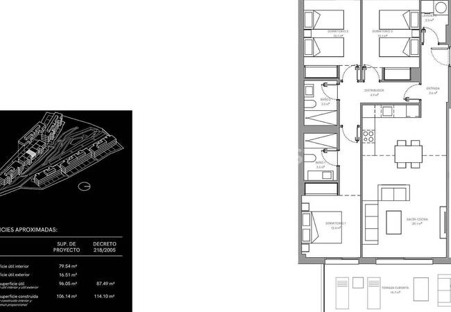
Diese modernen Qualitätswohnungen verfügen über großzügige Terrassen, die aus der charakteristischen grünen Fassade herausragen und einen architektonischen Rahmen bilden, der das ganze Jahr über für optimale Sonneneinstrahlung sorgt. Die Terrassen sind durch große, bodentiefe Fenster mit den inneren Wohnbereichen verbunden und ermöglichen so den Blick auf die herrliche Landschaft der Costa del Sol. Alle Wohnungen werden mit voll ausgestatteten, offenen Küchen und privaten Parkplätzen geliefert. Einige Wohnungen haben auch einen Abstellraum.
- Klimaanlage
- Jalousie
- Privatem Badezimmer
- Küchengeräte
- Offene Küche
- Dusche
- Solarium
- Lagerraum
- Terrasse
- Elektrogeräte
- Parkplatz (geschlossen)
- Gemeinschaftsgarten
- Gemeinschaftspool
- Fitnesszentrum
- In einem Komplex
- Aufzug
- Sauna
- Überwachungskamera
- Flughafen (0-50 km)
- Strand (1-5 Km)
- Meer (1-5 km)
- Meeresblick
- Schöne Naturansicht
- Blick auf die Berge
- Golfblick
- Klimaanlage
- Westen
- Osten
- Süden
- Nordwest
- Nordost
- Südwesten
- Süd-Ost



































