Sandis Jozapaitis
- VERKAUFSAGENTSandis Jozapaitis+34 683 45 86 86+34 951 23 59 59sales@spainhomes.com
Warum es unterschiedliche Preise auf verschiedenen Webseites gibt?
Die Preisliste ist basiert auf Euro. Wechselkurse werden täglich aktualisiert. Die angegebenen Preise sind Anfangspreise und die mit dem Kauf der Immobilie verbundenen Kosten (wie ITP oder Mehrwertsteuer, Notariatskosten, Registrierungskosten) sind nicht enthalten. Warum gibt es auf verschiedenen Websites unterschiedliche Preise?

- Große Grundstücke von 10.000 m²
- Einstöckiges Design
- Privater Pool und Parkplatz
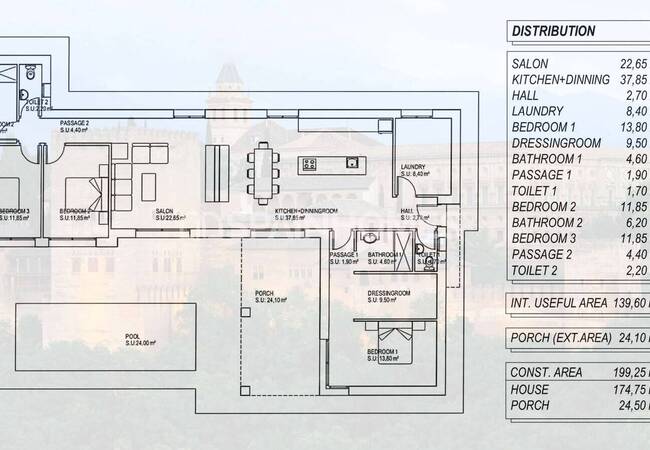
3-Schlafzimmer-Häuser mit Pools und Parkplätzen in Aspe, Alicante
Diese Häuser umfassen 3 Schlafzimmer, ein geräumiges Ankleidezimmer, ein eigenes Badezimmer, eine offene Küche und ein Wohnzimmer sowie einen Hauswirtschaftsraum (Waschküche und Abstellraum). Außerdem verfügt jedes Haus über eine geräumige Terrasse mit herrlichem Blick auf die Natur.
Die Häuser befinden sich auf 10.000 m² großen Grundstücken. Jedes verfügt über einen privaten Swimmingpool und einen umzäunten Parkplatz. Hausbesitzer können einen Teil des Weinbergs des Projekts nutzen.
Das Projekt befindet sich in der Region Aspe in Alicante. Aspe ist eine atemberaubende Stadt mit einer langen Geschichte und Sehenswürdigkeiten wie der Basilika Unserer Lieben Frau von Socorro. Die Stadt ist Austragungsort maurischer und christlicher Feste. Sie ist auch ein beliebter Ort für die Produktion hochwertiger Weine und Olivenöle.
Die Häuser zum Verkauf in Aspe, Alicante befinden sich in der Nähe von Annehmlichkeiten wie Schulen, Einkaufszentren und dem internationalen Flughafen von Alicante. Sie liegen auch in der Nähe von Golfplätzen, dem Naturpark El Hondo, den Salzseen von Santa Pola und Arenales del Sol.
Bitte beachten Sie: Der Kauf des Grundstücks ist obligatorisch und nicht im angegebenen Preis enthalten. Die Grundstücksgrößen und -preise variieren zwischen 40.000 und 100.000 Euro.
- Klimaanlage
- Balkon
- Jalousie
- Privatem Badezimmer
- Küchengeräte
- Offene Küche
- Dusche
- Solarium
- Lagerraum
- Terrasse
- Elektrogeräte
- Parkplatz
- Privater Garten
- Privater Schwimmbad
- Flughafen (50-100 km)
- Schöne Naturansicht
- Blick auf die Berge
- Bushaltestelle
- Geschäfte / Einkaufszentrum
- Bars / Restaurants
- Klimaanlage


































































