Sandis Jozapaitis
- AGENTE DE VENTASSandis Jozapaitis+34 683 45 86 86+34 951 23 59 59sales@spainhomes.com
¿Por qué hay precios diferentes en los distintos sitios web?
Los precios base pueden estar en diferentes monedas. Los tipos de cambio se actualizan dos veces al día. Los precios declarados son los precios de partida, y no se incluyen los gastos inherentes a la compra del inmueble (como el ITP o el IVA, los gastos notariales, los gastos de registro). ¿Por qué hay precios diferentes en los distintos sitios web?

- Fácil acceso al aeropuerto
- Diseño espacioso
- A pocos pasos de la playa
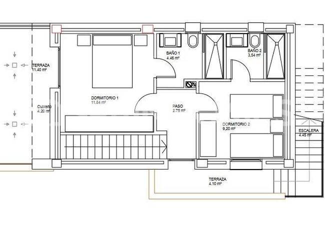
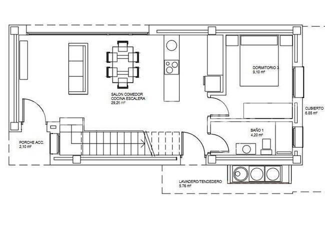
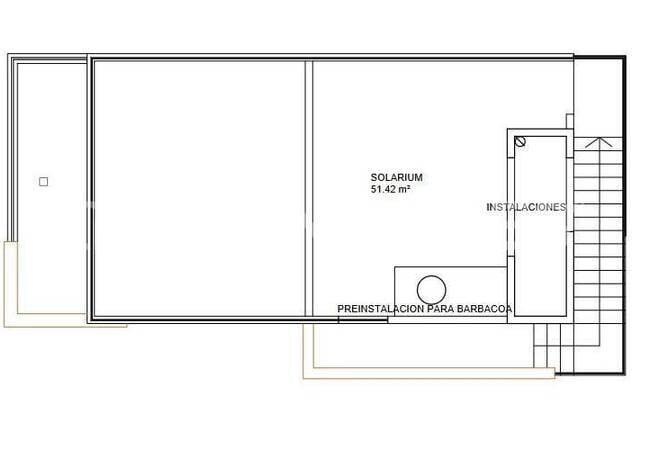
Casas unifamiliares de 3 dormitorios con diseño de lujo en La Marina Elche
Las casas tienen 220 m2 de terreno. Además, las casas cuentan con piscina privada, jardines, zonas de aparcamiento y terrazas. Las casas constan de 3 plantas incluyendo terraza con zona de barbacoa. Las zonas interiores de las casas están equipadas con 3 dormitorios, 2 baños en suite, un baño compartido, sala de estar, comedor, cocina americana, lavadero y terraza privada para el dormitorio principal.
Las casas unifamiliares están ubicadas en La Marina, una zona costera de Elche, Alicante. La zona goza de un clima mediterráneo perfecto que ofrece veranos calurosos e inviernos suaves.
Las casas en venta en Elche España se encuentran a poca distancia de muchos restaurantes y de la playa, a 3 minutos en coche del mercado más cercano, a 7 minutos de San Fulgencio y a 20 minutos del aeropuerto de Alicante y del centro de la ciudad de Alicante.
- Aire Acondicionado
- Balcón
- Barbacoa
- Persianas
- Baño en-suite
- Electrodomésticos de Cocina
- Cocina Abierta
- Ducha
- Solarium
- Terraza
- Televisión por Satélite
- Aparcamiento (Cerrado)
- En Un Complejo
- Jardín Privado
- Piscina Privada
- Aeropuerto (0-50 Km)
- Playa (500-1000 M)
- Mar (0-1 Km)
- Estación de Autobús
- Tiendas / Centro Comercial
- Bares / Restaurantes
- Aire Acondicionado
- Calefacción Central
- Sureste








































