Ewelina Socha
- AGENTE DE VENTASEwelina Socha+34 683 45 86 86+34 951 23 59 59sales@spainhomes.com
¿Por qué hay precios diferentes en los distintos sitios web?
Los precios base pueden estar en diferentes monedas. Los tipos de cambio se actualizan dos veces al día. Los precios declarados son los precios de partida, y no se incluyen los gastos inherentes a la compra del inmueble (como el ITP o el IVA, los gastos notariales, los gastos de registro). ¿Por qué hay precios diferentes en los distintos sitios web?

- Diseño elegante
- Piscina privada y terraza opcional
- Ubicación privilegiada
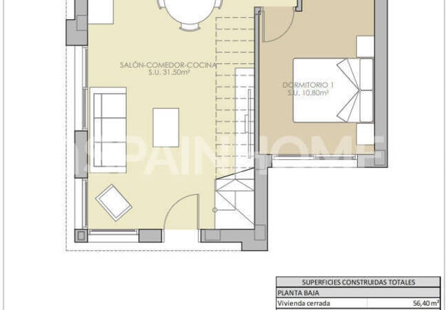
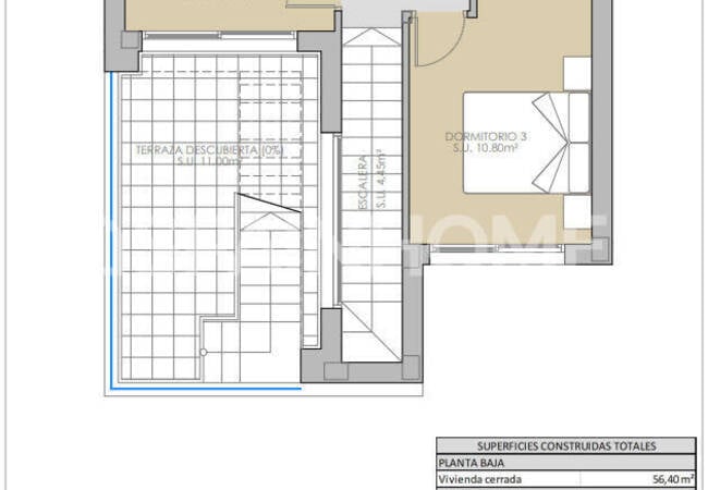
Elegantes casas de 3 dormitorios en venta en Orihuela Vistabella Golf
Las casas cuentan con tres amplios dormitorios con armarios empotrados, dos baños y un salón conectado a una cocina totalmente equipada. En la planta baja, los residentes disfrutan de acceso directo a un jardín con piscina privada y plaza de aparcamiento. La primera planta ofrece una amplia terraza con impresionantes vistas y, opcionalmente, se puede añadir un solárium en la azotea.
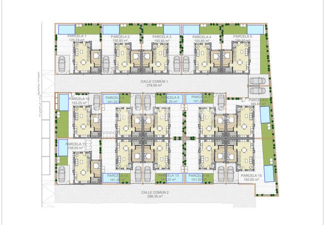
El proyecto consta de 42 casas adosadas. La zona residencial incluye zonas verdes ajardinadas y ofrece acceso directo al campo de golf y a los servicios sociales cercanos.
Las casas se encuentran cerca de Vistabella Golf, entre San Miguel de Salinas y Los Montesinos. Rodeada de parajes naturales, esta zona residencial destaca por su proximidad a animados pueblos costeros y playas de arena, ofreciendo a los compradores un estilo de vida tranquilo.
Las casas en venta en Alicante Orihuela se encuentran a pocos pasos del campo de golf de Vistabella y cerca de supermercados, restaurantes y bares. Se encuentran a 5 km de San Miguel de Salinas y Los Montesinos, a 15 km de las playas con Bandera Azul de Guardamar del Segura y a 55 km del Aeropuerto Internacional de Alicante.
- Aire Acondicionado
- Balcón
- Persianas
- Electrodomésticos de Cocina
- Cocina Abierta
- Ducha
- Solarium
- Trastero
- Terraza
- Electrodomésticos
- Aparcamiento
- En Un Complejo
- Jardín Privado
- Piscina Privada
- Aeropuerto (0-50 Km)
- Hermosa Vista de la Naturaleza
- Vista al Campo de Golf
- Estación de Autobús
- Tiendas / Centro Comercial
- Bares / Restaurantes
- Aire Acondicionado


































