 
- АГЕНТ ПО НЕДВИЖИМОСТИYuliya Yankova+34 683 45 86 86+34 951 23 59 59sales@spainhomes.com
Почему отличаются цены на разных сайтах?
Цены в прайс-листе могут быть указаны в разных валютах. Курсы валют обновляются два раза в день. Заявленные цены являются начальными, и в них не включены расходы по покупке недвижимости (налог на передачу собственности, НДС, услуги нотариуса, расходы на регистрацию и пр.). Почему отличаются цены на недвижимость на разных сайтах?
- Доступные цены
- Рядом с природным парком Лас-Лагунас
- Рядом с объектами социальной сферы
Элегантные и Комфортабельные Виллы с 3-мя Спальнями, Бассейном и Парковкой в Лос-Монтесинос
Виллы на продажу находятся в Лос-Монтесиносе – в муниципалитете провинции Аликанте в сообществе Валенсия. В традиционном испанском городе Лос-Монтесинос есть вся необходимая инфраструктура для повседневной жизни: супермаркеты, бары, кафе и рестораны, небольшой уличный рынок по пятницам вечером. В окрестностях проходит пешеходный маршрут под названием Рута Салада («Солёный путь»), берег розовой лагуны и места для пешей прогулки или на велосипеде до пляжей Торревьехи.
Современные виллы в Аликанте с современным дизайном находятся в 200 метрах от всего необходимого для повседневной жизни: супермаркетов, ресторанов, баров, аптек, банков и пр. За несколько минут можно доехать до Торревьехи, Сьюдад-Кесада или потрясающих песчаных пляжей Ла-Мата. Отдельные виллы в Лос-Монтесиносе построены в 2 км от природного заповедника Лас-Лагунас-де-Ла-Мата, в 6 км от поля для гольфа Ла-Маркеса и в 15 минутах от Торревьехи. Кроме того, до аэропорта Аликанте можно добраться за 35 минут на машине.
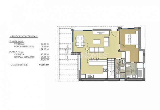
Первоклассные виллы в Лос-Монтесиносе построены на участках от 202 до 410 кв.м. У каждой виллы есть собственная парковка, кладовая и бассейн.
На первом этаже находится главная спальня, на верхнем – еще 2 спальни. Во всех спальных комнатах установлены встроенные шкафы. Виллы в Аликанте, Лос-Монтесинос оборудованы панорамными французскими окнами, автоматическими жалюзи, лестницами и террасой со стеклянными ограждениями.
В общую стоимость включены:
• Персональный бассейн (только для вилл в фазе 1)
• Солярий (только для вилл в фазе 1)
• Полы с подогревом в ванных комнатах
• Душевая кабина во всех ванных комнатах
• Стеклокерамическая плита, духовка и вытяжка из нержавеющей стали на кухне
• Автоматические ворота в гараже
• Видеодомофон
• Автоматические алюминиевые жалюзи черного цвета
• Инфраструктура для установки кондиционеров во всем доме
• Входная безопасная дверь с шестью точками крепления
• Встроенные шкафы с внутренней отделкой из дерева, ящиками и креплением для вешалок
- Кондиционер
- Балкон
- Жалюзи
- Дополнительный санузел
- Кухонная техника
- Кухня открытой планировки
- Душевая кабина
- Солярий
- Терраса
- Бытовая техника
- Автопарковка
- Подземный паркинг
- Собственный сад
- Собственный бассейн
- Аэропорт (0-50 км)
- Озеро (0-1 км)
- Автобусная остановка
- Магазины / ТЦ
- Кондиционер
































































 RUB
RUB