Yuliya Yankova
- АГЕНТ ПО НЕДВИЖИМОСТИYuliya Yankova+34 683 45 86 86+34 951 23 59 59sales@spainhomes.com
Почему отличаются цены на разных сайтах?
Цены в прайс-листе могут быть указаны в разных валютах. Курсы валют обновляются два раза в день. Заявленные цены являются начальными, и в них не включены расходы по покупке недвижимости (налог на передачу собственности, НДС, услуги нотариуса, расходы на регистрацию и пр.). Почему отличаются цены на недвижимость на разных сайтах?
- Отделка с эффектом натурального камня
- Отдельные виллы с личными бассейнами
- Рядом с объектами инфраструктуры
Отдельные Виллы с 3 Спальнями с Отделкой из Натурального Камня в Рохалесе, Сьюдад-Кесада
Отдельные виллы в Сьюдад-Кесада расположены на красивом южном склоне холма в провинции Аликанте. Сьюдад-Кесада – отличное место для покупки недвижимости как для отдыха, так и для постоянного проживания. Он расположен в экологически чистом районе и подходит для людей всех возрастов. До Кесады легко добраться, всего в нескольких минутах езды находятся одни из лучших пляжей Коста-Бланки.
Выгодно расположенные виллы находятся в нескольких минутах ходьбы от повседневных удобств, в 2,5 км от соленых озер Торревьеха и Ла-Мата, в 5,5 км от популярного 18-луночного поля для гольфа La Marquesa, в 8 км от пляжа, в 10 км от центра города Торревьеха и в 40 км от международного аэропорта Аликанте.
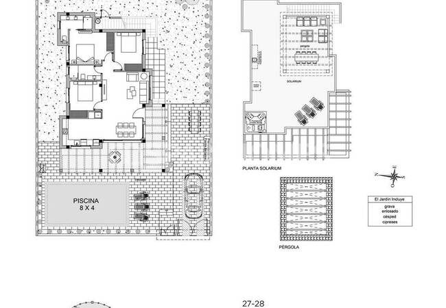
Виллы в Рохалесе построены на земельном участке площадью 520 м², на котором есть большой частный бассейн и огороженное парковочное место, достаточное для двух автомобилей.
На первом этаже вилл расположены 3 спальни со встроенными шкафами, ванная комната с душевой кабиной, оборудованная кухня открытой планировки с обеденной зоной и просторная гостиная с большими окнами, выходящими на частный бассейн. В главной спальне также есть ванная комната с душевой кабиной.
На крыше вилл также есть частный солярий площадью 100 м² с большой беседкой площадью 35 м² с зоной отдыха.
- Кондиционер
- Балкон
- Жалюзи
- Дополнительный санузел
- С мебелью
- Кухонная техника
- Кухня открытой планировки
- Душевая кабина
- Солярий
- Терраса
- Спутниковое ТВ
- Бытовая техника
- Автопарковка
- В комплексе
- Собственный сад
- Собственный бассейн
- Аэропорт (0-50 км)
- Автобусная остановка
- Магазины / ТЦ
- Бары / рестораны
- Кондиционер




















































































