Sandis Jozapaitis
- АГЕНТ ПО НЕДВИЖИМОСТИSandis Jozapaitis+34 683 45 86 86+34 951 23 59 59sales@spainhomes.com
Почему отличаются цены на разных сайтах?
Цены в прайс-листе могут быть указаны в разных валютах. Курсы валют обновляются два раза в день. Заявленные цены являются начальными, и в них не включены расходы по покупке недвижимости (налог на передачу собственности, НДС, услуги нотариуса, расходы на регистрацию и пр.). Почему отличаются цены на недвижимость на разных сайтах?
- Открытый вид на море
- Первая береговая линия
- Просторная жилая площадь
Роскошные Виллы в Отличном Месте у Пляжа в Эль-Кампельо, Коста-Бланка
Эти объекты расположены в Эль-Кампельо – живописном муниципалитете в провинции Аликанте. Приморские районы Аликанте относятся к региону Коста-Бланка – средиземноморскому региону с райскими пляжами, многочисленными развлечениями и благоприятным климатом.
Виллы на продажу в Эль-Кампельо, Аликанте, имеют отличное расположение прямо возле уединенного пляжа. Поездка до ближайших ресторанов займет меньше 5 минут, а за 10 минут езды вы сможете добраться до городов Эль-Кампельо или Вильяхойоса, где есть вся необходимая инфраструктура для повседневной жизни, включая престижные медицинские центры, школы, супермаркеты, торговые центры и многое другое. Благодаря автомагистрали AP-7, поездка до аэропорта и крупного города Аликанте занимает 30 минут.
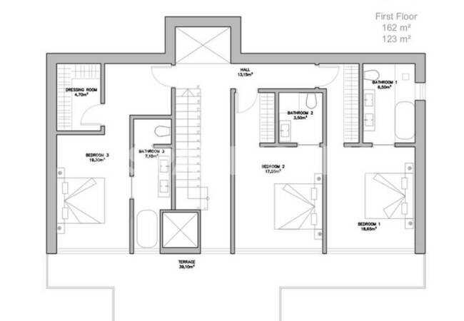
Комплекс вилл расположен на первой береговой линии, что обеспечивает открытый вид на море из каждого дома. Недвижимость ориентирована на море, на юго-восток, благодаря чему интерьеры прекрасно освещены в течение всего дня. Дома оборудованы гаражами, террасами, садами и современными бассейнами. Поэтажные планы разнятся в зависимости от выбранной модели, но во всех домах есть просторные гостиные и кухни. 4 спальни спроектированы как люксы с отдельными ванными комнатами, террасами и гардеробными.
- Кондиционер
- Балкон
- Жалюзи
- Гардеробная
- Дополнительный санузел
- Прачечная
- Кухня открытой планировки
- Душевая кабина
- Кладовая
- Спутниковое ТВ
- Подземный паркинг
- Собственный сад
- Собственный бассейн
- Аэропорт (0-50 км)
- Возле пляжа
- У моря
- Вид на природу
- Кондиционер
- Солнечные батареи
- Юго-восток







































