Onur Arslan
- SATIŞ TEMSİLCİSİOnur Arslan+34 683 45 86 86+34 951 23 59 59sales@spainhomes.com
Neden farklı web sitelerinde farklı fiyatlar var?
Döviz kurları günlük olarak güncellenmektedir. Beyan edilen fiyatlar başlangıç fiyatlarıdır ve mülkün satın alınmasına ilişkin maliyetler (ITP veya KDV, noter masrafları, kayıt masrafları vb.) dahil değildir. Neden farklı web sitelerinde farklı fiyatlar var?

- Sahile yürüme mesafesinde
- Şehir ve havalimanına 15-20 dakika
- Özel bahçe ve havuz
Alicante San Juan’da Denize Yakın Özel Havuzlu Müstakil Villalar
Villalar San Juan'da yer almaktadır. San Juan, Alicante şehrinin yanında bir sahil kasabasıdır. Costa Blanca bölgesinin bir parçası olan bu kasaba, mükemmel iklimi, büyüleyici manzaraları ve kumsalları ile tanınmaktadır.
San Juan, konforlu bir yaşam için gereken tüm olanakları sunan popüler bir bölgedir. En yakın plaj olan Playa de Muchavista, villalara yürüme mesafesindedir. Kilometrelerce uzanan ince kumlu bir plaj olan Playa Muchavista'nın ayrıca geniş bir sahil yürüyüş yolu da bulunmaktadır. Ayrıca villalardan, alışveriş merkezleri, okullar, tıp merkezleri, süpermarketler ve restoranlar gibi olanaklara da arabayla sadece 5 dakikada ulaşabilirsiniz. Şehir, arabayla 15 dakikadan daha kısa mesafededir. Kentte Santa Bárbara Kalesi, müzeler ve yıl boyu süren etkinlikler de dahil olmak üzere ünlü yapıları ve çok çeşitli sosyal etkinlikleri bulabilirsiniz. Ayrıca, havalimanı da sadece 20 dakika uzaklıkta.
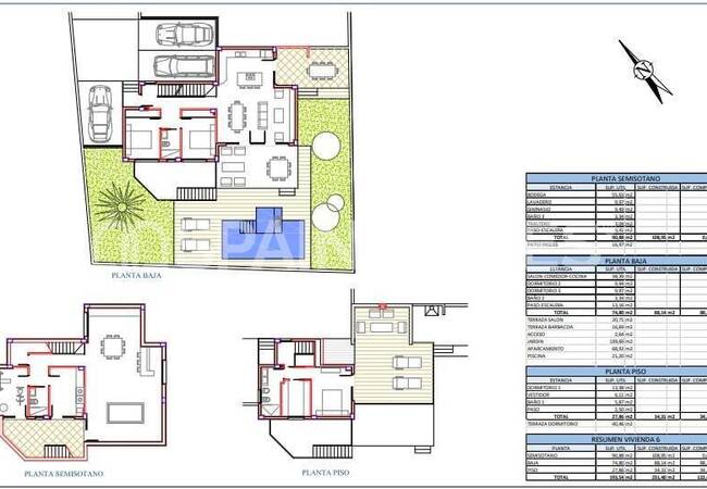
Alicante'de satılık villalar kullanışlı ve aydınlık bir tasarıma sahip olup sakinlerine rahat ve huzurlu bir yaşam vadetmektedir. Tamamen müstakil villalarda, havuzlu ve teraslı bir bahçe, solaryum ve kapalı otopark bulunmaktadır. Üç katlı villalarda, çamaşır odası, kiler, spor salonu, banyo ve oyun odası veya ek bir misafir odası için uygun açık plan bir alan içeren yarı bodrum bulunmaktadır. Villalarda geniş bir oturma odası, yemek alanının yanında açık plan bir mutfak, 3 geniş yatak odası ve 3 banyo bulunmaktadır. Ayrıca, ebeveyn yatak odasında bir giyinme odası bulunmaktadır.
- Klima
- Panjur
- Giyinme Odası
- Ebeveyn Banyosu
- Ankastre Set
- Çamaşır Odası
- Amerikan Mutfak
- Duşakabin
- Solaryum
- Depo
- Teras
- Merkezi Uydu Sistemi
- Kapalı Otopark
- Site İçinde
- Müstakil Bahçe
- Özel Yüzme Havuzu
- Havalimanı (0-50 Km)
- Plaj (500-1000 M)
- Deniz (0-1 Km)
- Otobüs Terminali
- Mağaza ve Alışveriş Merkezi
- Bar / Restoran
- Klima
- Kalorifer
- Güney Doğu


















































