Onur Arslan
- SATIŞ TEMSİLCİSİOnur Arslan+34 683 45 86 86+34 951 23 59 59sales@spainhomes.com
 
Neden farklı web sitelerinde farklı fiyatlar var?
Döviz kurları günlük olarak güncellenmektedir. Beyan edilen fiyatlar başlangıç fiyatlarıdır ve mülkün satın alınmasına ilişkin maliyetler (ITP veya KDV, noter masrafları, kayıt masrafları vb.) dahil değildir. Neden farklı web sitelerinde farklı fiyatlar var?

- Olanaklara yürüme mesafesi
 - Birinci sınıf tasarım
 - Sahile yakın konum
 
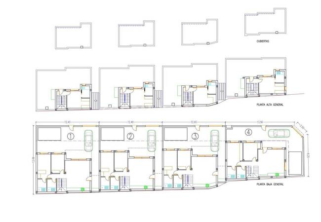
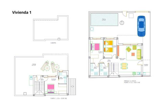
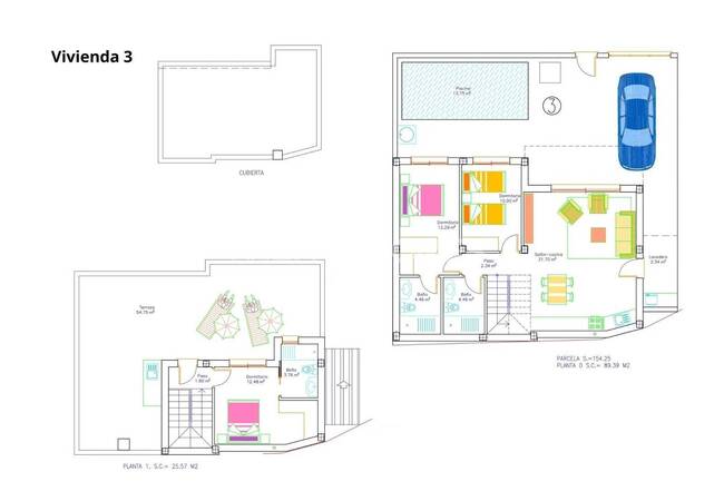
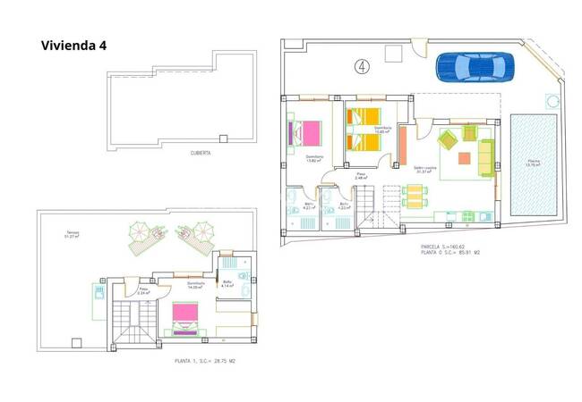
San Pedro del Pinatar'da Plaja Yakın Konumda Özel Havuzlu Müstakil Villalar
Villaların zemin katında 2 yatak odası, banyo, ebeveyn banyosu, açık plan mutfak ve çamaşır odası bulunmaktadır. Üst katta giyinme odası ve ebeveyn banyosu bulunan bir diğer yatak odası yer almaktadır. Bu katta ayrıca güneşlenme terası da bulunmaktadır. Yatak odaları gömme dolaplarla donatılmıştır. Oturma odası bölümünde Fransız pencereler bulunmaktadır.
Müstakil villalar 145 - 165 m² arsa alanında yer almaktadır. Tüm villalarda özel yüzme havuzu ve kapalı otopark mevcuttur.
Satılık villalar, Murcia'nın San Pedro del Pinatar kasabasında yer almaktadır. San Pedro del Pinatar, muhteşem Akdeniz plajları ile oldukça güzel bir kasabadır. Salinas y Arenales de San Pedro del Pinatar Bölge Parkı ve Mar Menor lagünü gibi doğal harikalara ev sahipliği yapmaktadır.
San Pedro del Pinatar'da satılık villalar, günlük olanaklara birkaç adım uzaklıkta bulunmaktadır. Ayrıca Playa de los Villananitos plajına 3 km, Dos Mares alışveriş merkezine 3,3 km, San Pedro limanına 3,6 km, San Javier merkezine 6,2 km, 18 delikli Lo Romero golf sahasına 8 km, Murcia Uluslararası Havalimanı'na ise 39 km mesafededir.
- Klima
 - Balkon
 - Panjur
 - Ebeveyn Banyosu
 - Ankastre Set
 - Çamaşır Odası
 - Amerikan Mutfak
 - Duşakabin
 - Solaryum
 - Depo
 - Teras
 
- Açık Otopark
 - Site İçinde
 - Müstakil Bahçe
 - Özel Yüzme Havuzu
 
- Havalimanı (0-50 Km)
 - Plaj (1-5 Km)
 - Deniz (1-5 Km)
 - Otobüs Terminali
 - Mağaza ve Alışveriş Merkezi
 - Bar / Restoran
 
- Klima
 






























