Çağlar Girishan
- SATIŞ TEMSİLCİSİÇağlar Girishan+34 683 45 86 86+34 951 23 59 59sales@spainhomes.com
Neden farklı web sitelerinde farklı fiyatlar var?
Döviz kurları günlük olarak güncellenmektedir. Beyan edilen fiyatlar başlangıç fiyatlarıdır ve mülkün satın alınmasına ilişkin maliyetler (ITP veya KDV, noter masrafları, kayıt masrafları vb.) dahil değildir. Neden farklı web sitelerinde farklı fiyatlar var?

- Göz alıcı deniz manzarası
- Harika konum
- Gizlilik ve sakinlik
Estepona, La Gaspara'da Güney Cepheli Teraslı Yeni İnşaat Daireler
Estepona'da deniz manzaralı daireler Málaga'nın merkezi konumunda yer almaktadır. Bölgede tüm sosyal olanakların yer aldığı kafeler, barlar ve restoranlar yürüyüş mesafesindedir. Uluslararası okullar, hastaneler ve tenis kulüplerine sahip, Estepona'nın La Gaspara bölgesi avantajlı konumuyla Costa del Sol'de bulunmaktadır. İspanyol yaşam tarzına uygun sahiller, dükkanlar, restoranlar ve kafeler bulunduran bu bölge sizin için avantajlı bir fırsattır.
Estepona'da satılık daireler sahile yakın ve tüm sosyal olanaklara yürüyüş mesafesindedir. Marbella'nın batısına ve lüks restoran ve butik mağazalara, modern sahil kulüplerine ve yat kulüplerine sahip Puerto Banus'a 15 dakika uzaklıktadır.
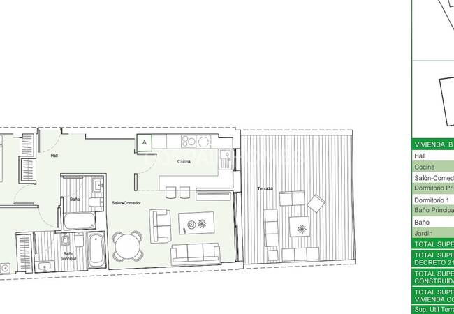
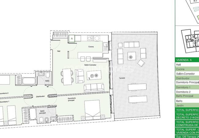
Dairelerin yer aldığı site içinde 2+1, 3+1, 4+1 olmak üzere toplam 73 daire ve çatı katı daireler bulunmaktadır. Site içinde asansör, kapalı otopark, 7/24 güvenlik, ortak bahçe ve 2 adet ortak yüzme havuzu bulunmaktadır.
Estepona'da daireler ve çatı katı daireler klima, duşakabin, ankastre mutfak, depo odası ve beyaz eşyalarla donatılmıştır. Ferah dairelerin bazılarında ebeveyn banyosu, teras ve solaryumlu çatı terası bulunmaktadır.
- Klima
- Ebeveyn Banyosu
- Ankastre Set
- Amerikan Mutfak
- Duşakabin
- Solaryum
- Depo
- Teras
- Beyaz Eşya
- Kapalı Otopark
- Ortak Bahçe
- Yüzme Havuzu
- Site İçinde
- Asansör
- 7/24 Güvenlik
- Havalimanı (50-100 Km)
- Plaj (500-1000 M)
- Deniz (0-1 Km)
- Deniz Manzaralı
- Klima
- Güney
- Güney Batı










































