Onur Arslan
- SATIŞ TEMSİLCİSİOnur Arslan+34 683 45 86 86+34 951 23 59 59sales@spainhomes.com
Neden farklı web sitelerinde farklı fiyatlar var?
Döviz kurları günlük olarak güncellenmektedir. Beyan edilen fiyatlar başlangıç fiyatlarıdır ve mülkün satın alınmasına ilişkin maliyetler (ITP veya KDV, noter masrafları, kayıt masrafları vb.) dahil değildir. Neden farklı web sitelerinde farklı fiyatlar var?

- Muhteşem deniz manzarası
- Uygun fiyat
- Sahile yakın
Manilva'da Muhteşem Deniz Manzarasına Sahip Modern Yarı Müstakil Evler
Bu yepyeni konut projesi Manilva’da yer almaktadır. Manilva, Malaga il sınırında yer alan büyüleyici bir bölgedir. Gelişmekte olan bölge, Cadiz’e komşudur. İyi korunmuş geleneksel İspanyol karakteristiğiyle dikkat çeken Manilva, kalabalık olmayan bir sahile, göz alıcı manzaralara, berrak sulara ve kumsallara ev sahipliği yapmaktadır. Subtropikal Akdeniz ikliminin hakim olduğu bu güzel yerleşim bölgesi sakinlerine huzurlu ve konforlu bir yaşam vadetmektedir.
Manilva'daki evler sahile sadece 1 km uzaklıktadır. Tepe üzerine konumlanan proje, muhteşem bir Costa del Sol manzarası sunmaktadır. Projenin otoyol bağlantı noktasına yakınlığı, kısa bir sürüş mesafesinde tüm aktivite ve olanakları bulmanıza imkan tanır. Ayrıca, La Duquesa Yat Limanı 7 km ve ünlü Sotogrande Yat Limanı ise sadece 8 km uzaklıktadır. Konforlu bir yaşam vadeden evler ayrıca, Gibraltar Havalimanı’na 30 km, Malaga Uluslararası Havalimanı’na 95 km, Estepona merkezine 17 km ve Marbella'da yer alan Puerto Banus'a 40 km uzaklıktadır.
Şık evler çağdaş bir site içinde yer almaktadır. Sitenin tasarımında, tepe üzeri konumundan tam olarak yararlanılmış ve evlerin muhteşem Akdeniz, Cebelitarık ve Afrika manzarası sunması sağlanmıştır. Site, sakinlerinin özel kullanımı için güvenlikli ortak alanlar sunmaktadır. Sitede yaşayanlar, peyzajlı bahçeler, açık sonsuzluk havuzu, spalı bir sosyal kulüp ve donanımlı spor salonu gibi site içindeki tüm ortak alanlardan yararlanabileceklerdir.
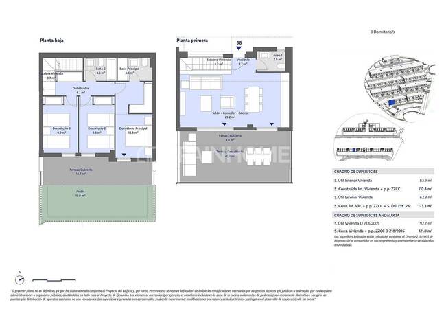
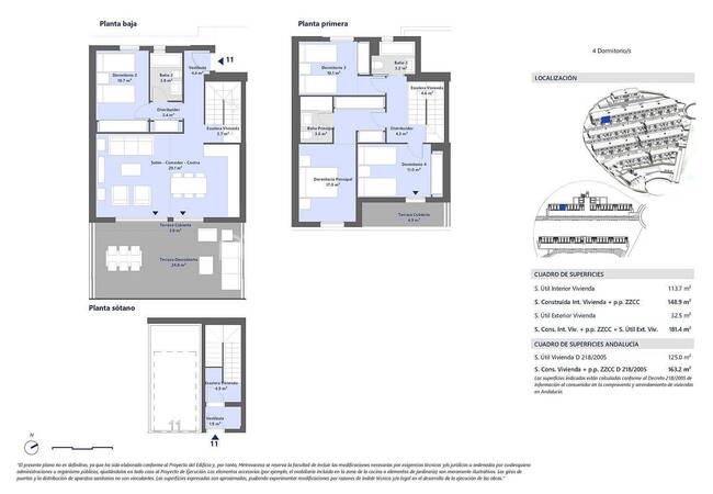
Proje, enerji tasarruflu 3 veya 4 odalı dubleks yarı müstakil evler bulunmaktadır. Kaliteli malzemelerle inşa edilen evler, geniş teraslara ve aydınlık açık plan konsept iç mekanlara sahip olacaktır. Şık evler, tam donanımlı mutfaklar ve tüm odalarda klima ile teslim edilecektir. Özel otopark alanı ve depolama alanı ücreti yukarıda belirtilen satış fiyatına dahildir.
- Klima
- Küvet
- Panjur
- Ebeveyn Banyosu
- Ankastre Set
- Amerikan Mutfak
- Duşakabin
- Teras
- Beyaz Eşya
- Kapalı Otopark
- Ortak Bahçe
- Yüzme Havuzu
- Spor Salonu
- Site İçinde
- Sosyal Kulüp
- SPA
- Havalimanı (50-100 Km)
- Plaj (1-5 Km)
- Deniz (1-5 Km)
- Deniz Manzaralı
- Doğa Manzaralı
- Klima
- Batı
- Doğu
- Güney
- Güney Batı
- Güney Doğu





















