Onur Arslan
- SATIŞ TEMSİLCİSİOnur Arslan+34 683 45 86 86+34 951 23 59 59sales@spainhomes.com
Neden farklı web sitelerinde farklı fiyatlar var?
Döviz kurları günlük olarak güncellenmektedir. Beyan edilen fiyatlar başlangıç fiyatlarıdır ve mülkün satın alınmasına ilişkin maliyetler (ITP veya KDV, noter masrafları, kayıt masrafları vb.) dahil değildir. Neden farklı web sitelerinde farklı fiyatlar var?

- Hızlı inşaat süresi
- Arsa seçme imkanı
- Yüksek kaliteli tasarım
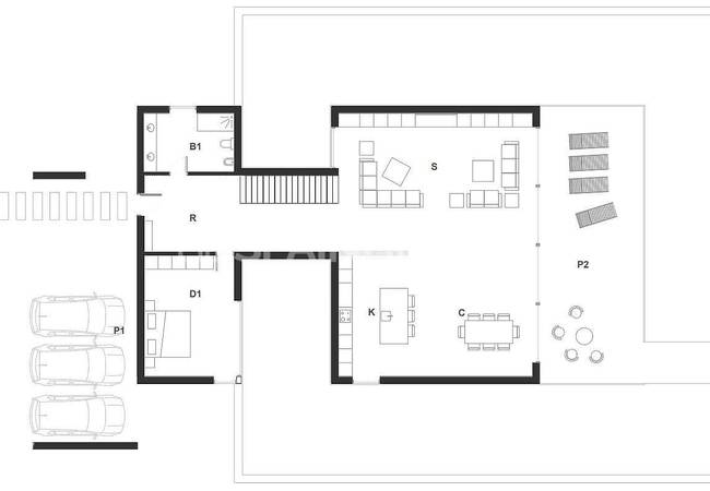
Alhaurin de la Torre'de Projeden Satılık Zengin Detaylı ve Ferah 4 Yatak Odalı Dubleks Villa
Alhaurin de la Torre, Malaga şehrinde yer alan güzel bir şehirdir. Bölge; ideal sıcaklıklar, sahile yakın konum ve doğal yaşam alanları sunmaktadır. Alhaurin de la Torre, eşsiz bir deneyim sunan Endülüs kasabasıdır. Misafirperver yerel halkından başlayarak Costa del Sol kıyı şeridindeki tüm şehirlere ve kasabalara kolay erişim sunması ile tanınmış bir bölgedir.
Alhaurin de la Torre, Malaga şehir merkezine 18 km ve Marbella'ya 40 dakika uzaklıkta yer almaktadır.
Costa del Sol'de yer alan çok sayıdaki yerleşim yeri sayesinde Spain Homes müşterilerine diledikleri bölgede hayallerindeki evi inşa etme fırsatı sunmaktadır.
Alhaurin de la Torre'de satılık villa modüler olarak tasarlanmıştır. Villada; en iyi temel sistemi, yüksek inşaat kalitesi, katmanlı yapı ile yalıtım ve kaliteli mutfak ile duş kabinli ve küvetli banyo gibi özellikler bulunmaktadır. Villada kullanılan beton, çelik ve ahşap gibi zengin malzemeler, villanın kalitesini arttırmaktadır. Villa, ideal sıcaklığın sağlanması için aerotermal enerji ile tasarlanmıştır. Ekstra ücret karşılığında villaya; sauna, sonsuzluk havuzu, buhar banyosu veya evin iç tasarımı eklenebilmektedir.
***NOT
Planlama aşamasındaki bu proje, tahmini teslim süresi 12 ay olan anahtar teslim bir projedir.
- Klima
- Balkon
- Barbekü
- Küvet
- Panjur
- Giyinme Odası
- Ebeveyn Banyosu
- Jakuzi
- Çamaşır Odası
- Amerikan Mutfak
- Duşakabin
- Solaryum
- Depo
- Teras
- Açık Otopark
- Kapalı Otopark
- Spor Salonu
- Müstakil Bahçe
- Özel Yüzme Havuzu
- Sauna
- Türk Hamamı
- Havalimanı (0-50 Km)
- Doğa Manzaralı
- Şehir Manzaralı
- Mağaza ve Alışveriş Merkezi
- Bar / Restoran
- Klima
- Jeotermal
- Batı
- Doğu
- Kuzey
- Güney
- Kuzey Batı
- Kuzey Doğu
- Güney Batı
- Güney Doğu






















