Onur Arslan
- SATIŞ TEMSİLCİSİOnur Arslan+34 683 45 86 86+34 951 23 59 59sales@spainhomes.com
Neden farklı web sitelerinde farklı fiyatlar var?
Döviz kurları günlük olarak güncellenmektedir. Beyan edilen fiyatlar başlangıç fiyatlarıdır ve mülkün satın alınmasına ilişkin maliyetler (ITP veya KDV, noter masrafları, kayıt masrafları vb.) dahil değildir. Neden farklı web sitelerinde farklı fiyatlar var?

- Modern tasarım
- Lüks özellikler
- Plaja 5 dakikalık mesafede
Alicante Calpe’de Büyüleyici Deniz Manzaralı Lüks Müstakil Villalar
Sıradışı tasarıma sahip olan villalar Costa Blanca’nın en iyi yerleşim bölgelerinden birinde yer almaktadır. Harika konumda bulunan villalar, plaja ve tüm olanaklara ulaşabileceğiniz Calpe merkeze 2 km’den kısa mesafede yer almaktadır. Çok çeşitli günlük ve sosyal olanakları bulabileceğiniz Benidorm 20 km mesafede iken, Alicante Havalimanı da 70 km mesafededir.
Araçla kısa sürede ulaşabileceğiniz Calpe’de pek çok golf sahası, uluslararası okul, deniz sporu olanakları, hareketli bir liman ve çok çeşitli restoranları bulabilirsiniz. Üstelik tüm bunları yıllık güneşli gün sayısı 300’den fazla olan ve ortalama sıcaklığı 20ºC olan ılıman Akdeniz iklimi koşulları altında deneyimleyebilirsiniz.
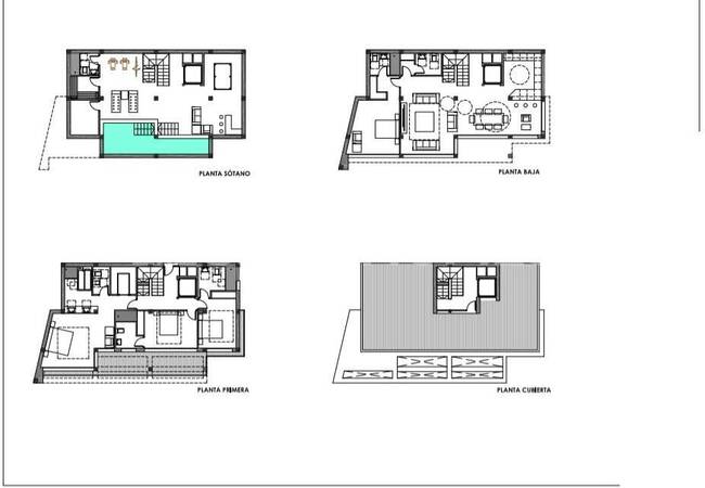
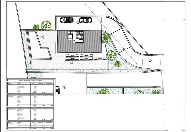
Dört katlı villaların zemin katında sizi, verandaya da doğrudan erişimi olan geniş bir oturma-yemek-mutfak alanı karşılamaktadır. Dahası, ebeveyn banyolu bir çift kişilik yatak odası ve ayrı tuvalet bulunmaktadır. Üst katta ebeveyn banyosu ve giyinme odası bulunan büyük ana yatak odası ve ebeveyn banyolu iki küçük yatak odası vardır. En üst katta bulunan teras muhteşem deniz manzarasını seyre dalarak vakit geçirmek için idealdir. Kısmi yer altında olacak şekilde inşa edilen en alt kat ise dinlenme ve hobi alanı olarak ayrılmıştır. Açık plana sahip alan istenildiği takdirde özel sinema veya oyun alanına dönüştürülebilecektir. Bu katta ayrıca spor/spa alanı, sauna ve bir banyo daha bulunmaktadır. Modern villalar, yerden ısıtma, klima, asansör, garaj, barbekü ve depo ile donatılmıştır.
Costa Blanca Calpe’de satılık villalarda üç katı birbirine bağlayan bir asansör bulunmaktadır. Villaların tüm odaları harika deniz manzarasına sahiptir. Sonsuzluk havuzuna sahip olan villalarda Akdeniz’i ve masmavi gökyüzünü seyre dalarak huzurlu vakit geçirebilirsiniz.
Alanının en iyilerinden olan bir inşaat firması tarafından inşa edilen ve birbirinden lüks özelliklerle donatılmış bu modern tasarımlı villalar rahat ve huzurlu bir yaşam için aradığınız her şeyi bir arada sunmaktadır.
- Klima
- Barbekü
- Küvet
- Panjur
- Kiler
- Giyinme Odası
- Ebeveyn Banyosu
- Şömine
- Jakuzi
- Çamaşır Odası
- Amerikan Mutfak
- Duşakabin
- Akıllı Ev Sistemi
- Solaryum
- Depo
- Teras
- Merkezi Uydu Sistemi
- Beyaz Eşya
- Açık Otopark
- Kapalı Otopark
- Asansör
- Müstakil Bahçe
- Özel Yüzme Havuzu
- Güvenlik Kamerası
- Havalimanı (50-100 Km)
- Plaj (1-5 Km)
- Deniz Manzaralı
- Doğa Manzaralı
- Dağ Manzaralı
- Orman Manzaralı
- Klima
- Kalorifer
- Yerden Isıtma
- Batı
- Doğu
- Güney
































