Çağlar Girishan
- SATIŞ TEMSİLCİSİÇağlar Girishan+34 683 45 86 86+34 951 23 59 59sales@spainhomes.com
Neden farklı web sitelerinde farklı fiyatlar var?
Döviz kurları günlük olarak güncellenmektedir. Beyan edilen fiyatlar başlangıç fiyatlarıdır ve mülkün satın alınmasına ilişkin maliyetler (ITP veya KDV, noter masrafları, kayıt masrafları vb.) dahil değildir. Neden farklı web sitelerinde farklı fiyatlar var?

- Deniz manzarası
- Ayrıcalıklı konum
- Eşsiz tasarım
Costa Blanca Moraira'da Çağdaş Tasarımlı Lüks ve Ferah Villa
Villa Alicante ilinin Moraira bölgesinde yer almaktadır. Moraira'da satılık villa muhteşem manzaraları, Akdeniz iklimi, zengin mutfağı ve uzun sahilleri ile ünlü bölgede yer almaktadır. Bölgenin bu özellikleri ve çok sayıda aktivite bulunması sayesinde önemli turistik noktalardan biri haline gelmiştir.
Moraira tüm servisleri ve olanakları barındıran geleneksel bir bölgedir. Villadan 7 dakikalık sürüş mesafesinde sahile, sağlık merkezine, eczaneye, süper marketlere, restoranlara ve okula ulaşılabilmektedir. Calpe ve Benidorm bölgeleri villaya yakın konumdadır. Tema parkları, muhteşem şehir silueti ve üst düzey sahilleri ile ünlü Benidorm Moraira'dan sadece 30 dakikalık sürüş mesafesinde yer almaktadır. AP-7 karayolu ile birlikte villadan Alicante Havalimanı'na ortalama bir saatlik sürüş süresinde ulaşılabilmektedir.
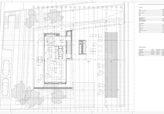
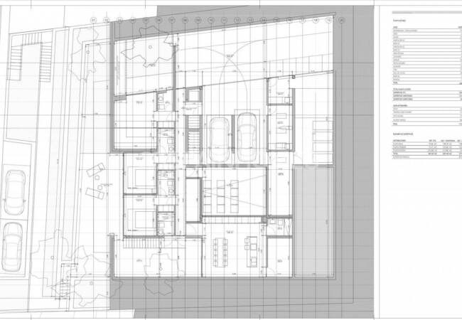
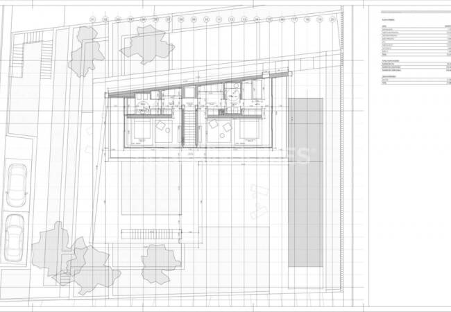
Eşsiz tasarıma sahip villa muhteşem konumunun tüm özelliklerini kullanmaktadır. Villa üç kattan oluşmaktadır ve girişi en üst katta yer almaktadır. En üst katta terasları ve ebeveyn banyosu bulunan, giysi dolapları ile tam donanımlı iki yatak odası bulunmaktadır. Orta katta oturma odası, yemek alanı ve açık plan mutfak yer almaktadır. Bu kattan havuz terasına geçiş bulunmaktadır. En alt katta ise, en üst katta olduğu gibi tam donanımlı iki yatak odası, çamaşır odası, iki araçlık kapalı otopark, sauna ve geniş sinema odası bulunmaktadır.
Çağdaş tasarımlı villa ankastre set, panjur, beyaz eşyalar ve merkezi uydu sistemi ile donatılmıştır.
- Klima
- Küvet
- Panjur
- Giyinme Odası
- Ebeveyn Banyosu
- Jakuzi
- Ankastre Set
- Çamaşır Odası
- Amerikan Mutfak
- Duşakabin
- Depo
- Teras
- Merkezi Uydu Sistemi
- Beyaz Eşya
- Kapalı Otopark
- Oyun Odası
- Müstakil Bahçe
- Özel Yüzme Havuzu
- Sauna
- Havalimanı (50-100 Km)
- Plaj (500-1000 M)
- Deniz (0-1 Km)
- Deniz Manzaralı
- Mağaza ve Alışveriş Merkezi
- Bar / Restoran
- Klima
- Yerden Isıtma
- Güney Doğu




























































