Onur Arslan
- SATIŞ TEMSİLCİSİOnur Arslan+34 683 45 86 86+34 951 23 59 59sales@spainhomes.com
Neden farklı web sitelerinde farklı fiyatlar var?
Döviz kurları günlük olarak güncellenmektedir. Beyan edilen fiyatlar başlangıç fiyatlarıdır ve mülkün satın alınmasına ilişkin maliyetler (ITP veya KDV, noter masrafları, kayıt masrafları vb.) dahil değildir. Neden farklı web sitelerinde farklı fiyatlar var?

- Deniz manzarası
- Eşsiz konum
- Avantajlı fiyat
Benitachell'de Olanaklara ve Sahile Yakın Konumda Eşsiz Deniz Manzaralı Müstakil Ev
Lüks ev Alicante ilinin kuzeyindeki Benitachell'de yer almaktadır. Bölge ayrıca Costa Blanca olarak da bilinmektedir. Bu muhteşem bölge doğal güzellikleri, Akdeniz iklimi ve mutfağı ile ünlüdür.
Benitachell bir sahil kasabasıdır ve ihtiyaç duyulan tüm olanaklara sahiptir. Evden sadece 5 dakikalık uzaklıkta sağlık merkezi, eczane, okul ve çok sayıda restoran bulunmaktadır. Evden yürüme mesafesinde süper market mevcuttur ve Cala Moraig sadece 1,5 km uzaklıktadır. Bölgeyi daha iyi tanımak isteyenlerin ünlü sahilleri ve eğlence merkezleri ile ünlü sadece 15 dakika uzaklıkta kıyı şehri Moraira'yı ziyaret etmesi tavsiye edilmektedir.
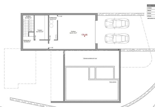
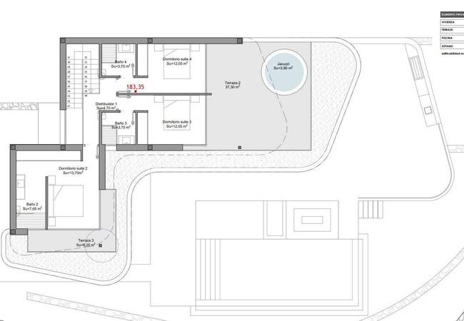
İspanya Benitachell'de satılık ev eşsiz tasarıma sahiptir ve üç kattan oluşmaktadır. Bodrum katında garaj ve depo alanı bulunmaktadır. Zemin katında ebeveyn banyolu, giyinme odalı ve havuz terasına erişimi bulunan bir oda mevcuttur. Zemin katında ayrıca oturma odası, ortak tuvalet, açık plan mutfak ve yemek alanı bulunmaktadır. Geniş pencereli bu alandan da havuz terasına erişim mevcuttur. En üst kat giyinme odalı, ebeveyn banyolu ve jakuzili terasa erişimi bulunan üç yatak odasından oluşmaktadır. Evin dış kullanım alanlarında etrafı teraslar ve bahçe ile çevrili deniz manzaralı sonsuzluk havuzu, açık oturma ve yemek alanı bulunmaktadır. Ayrıca kuru SPA ve barbekü alanı bulunmaktadır.
- Klima
- Barbekü
- Panjur
- Ebeveyn Banyosu
- Jakuzi
- Ankastre Set
- Çamaşır Odası
- Amerikan Mutfak
- Duşakabin
- Depo
- Teras
- Merkezi Uydu Sistemi
- Beyaz Eşya
- Kapalı Otopark
- Müstakil Bahçe
- Özel Yüzme Havuzu
- Sauna
- Havalimanı (50-100 Km)
- Plaj (1-5 Km)
- Deniz (1-5 Km)
- Deniz Manzaralı
- Otobüs Terminali
- Mağaza ve Alışveriş Merkezi
- Bar / Restoran
- Klima
- Yerden Isıtma
- Güney Doğu






















