Onur Arslan
- SATIŞ TEMSİLCİSİOnur Arslan+34 683 45 86 86+34 951 23 59 59sales@spainhomes.com
Neden farklı web sitelerinde farklı fiyatlar var?
Döviz kurları günlük olarak güncellenmektedir. Beyan edilen fiyatlar başlangıç fiyatlarıdır ve mülkün satın alınmasına ilişkin maliyetler (ITP veya KDV, noter masrafları, kayıt masrafları vb.) dahil değildir. Neden farklı web sitelerinde farklı fiyatlar var?

- Panoramik dağ manzarası
- Sakin bir bölgede 1.010 m² arsa alanı üzerinde
- Yüksek kalitede özel yaşam tarzı
Alicante Calpe'de Sahile 5 Km Mesafede Dağ Manzaralı Müstakil Villa
Satılık lüks villa, Alicante ilinin kuzeyinde bir kasaba olan Calpe'de yer almaktadır. Costa Blanca bölgesinin bir parçası olan bu sahil kasabası, yılın büyük bölümünde ılıman bir iklime, eşsiz plajlara ve manzaralara sahiptir. Calpe, konforlu ve lüks bir yaşam tarzı için uygun zengin olanaklara ev sahipliği yapmaktadır.
Alicante Calpe'deki satılık villa, okullar, süpermarketler, banka ofisleri, sağlık merkezleri ve göz kamaştırıcı Akdeniz plajları gibi olanaklarla dolu kent merkezine 5 km uzaklıktadır. Moraira veya Altea gibi diğer popüler bölgeler villadan 20 - 25 dakika mesafede yer almaktadır. Ayrıca lüks villanın bulunduğu konumdan Alicante Havalimanı'na AP-7 otoyolundan yaklaşık 1 saat içinde varılabilmektedir .
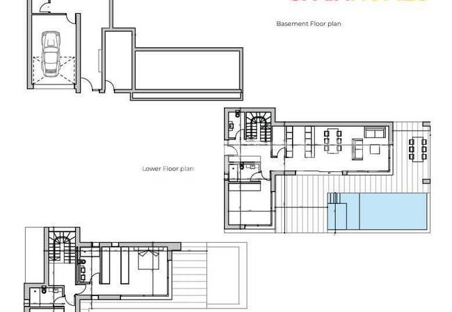
Villa, 1.010 m² arsa alanı üzerinde, panoramik dağ manzarasına sahip yüksek bir konumda inşa edilecektir. Villanın dış alanında geniş teraslar, yemek alanları, özel havuz ve bahçe gibi özellikler yer alacaktır.
Villanın bodrum katında bir garaj ve bir depo odası; ana katında geniş bir oturma odası, ortak tuvalet, açık plan mutfak ve ebeveyn banyolu bir yatak odası; birinci katında ise her ikisi de ebeveyn banyolu 2 yatak odası olacaktır. Ayrıca, ana yatak odasında gömme dolap da bulunacaktır.
- Klima
- Balkon
- Barbekü
- Panjur
- Giyinme Odası
- Ebeveyn Banyosu
- Ankastre Set
- Amerikan Mutfak
- Duşakabin
- Depo
- Teras
- Merkezi Uydu Sistemi
- Kapalı Otopark
- Müstakil Bahçe
- Özel Yüzme Havuzu
- Havalimanı (50-100 Km)
- Plaj (1-5 Km)
- Deniz (1-5 Km)
- Doğa Manzaralı
- Dağ Manzaralı
- Klima
- Kalorifer
- Güney Batı






















