Onur Arslan
- SATIŞ TEMSİLCİSİOnur Arslan+34 683 45 86 86+34 951 23 59 59sales@spainhomes.com
Neden farklı web sitelerinde farklı fiyatlar var?
Döviz kurları günlük olarak güncellenmektedir. Beyan edilen fiyatlar başlangıç fiyatlarıdır ve mülkün satın alınmasına ilişkin maliyetler (ITP veya KDV, noter masrafları, kayıt masrafları vb.) dahil değildir. Neden farklı web sitelerinde farklı fiyatlar var?

- Ayrıcalıklı konum
- Geniş kullanım alanları
- Ortak yüzme havuzu
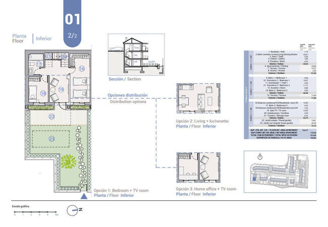
La Nucia'da Avantajlı Konuma Sahip Havuzlu Sitede Yarı Müstakil Villalar
Bu 3 katlı yarı müstakil villalar, 3 ve 4 yatak odası seçenekleri ile satışa sunulmaktadır. Hepsinde 4 banyo, açık plan mutfak ve geniş bir oturma odası bulunmaktadır. Bazı birimlerde gömme dolaplar bulunmaktadır. Villalarda bahçe ve 2 araçlık otopark bulunmaktadır.
Villalar, Alicante La Nurcia'da site içinde yer almaktadır. Site, yemyeşil bahçeler, yüzme havuzu ve çocuk oyun alanı gibi ortak kullanım olanaklarına sahiptir.
La Nucia, Akdeniz iklimine sahip sakin bir yaşam alanı ve popüler bir su ve doğa sporları merkezidir. La Nucia'da okullar, hastaneler, marketler ve restoranlar gibi her türlü olanak bulunmaktadır. Ayrıca kasaba Alicante ve Benidorm şehir merkezlerine kolay ulaşım imkanı sunmaktadır. Bölgede tüm yıl boyunca festivaller düzenlenir. La Nucia; temiz havası, doğal manzarası ve düşük suç oranı ile dikkat çekmektedir.
Alicante La Nucia'da satılık yarı müstakil villalar, günlük ihtiyaçlara yürüme mesafesindedir. Ayrıca okul ve hastaneye 5 dakika, Benidorm'a 15 dakika ve Alicante Havalimanı'na 40 dakika sürüş mesafesindedir.
- Klima
- Balkon
- Panjur
- Ebeveyn Banyosu
- Amerikan Mutfak
- Duşakabin
- Solaryum
- Teras
- Açık Otopark
- Ortak Bahçe
- Yüzme Havuzu
- Site İçinde
- Müstakil Bahçe
- Havalimanı (50-100 Km)
- Plaj (1-5 Km)
- Deniz (1-5 Km)
- Otobüs Terminali
- Mağaza ve Alışveriş Merkezi
- Klima










































