Sandis Jozapaitis
- SATIŞ TEMSİLCİSİSandis Jozapaitis+34 683 45 86 86+34 951 23 59 59sales@spainhomes.com
Neden farklı web sitelerinde farklı fiyatlar var?
Döviz kurları günlük olarak güncellenmektedir. Beyan edilen fiyatlar başlangıç fiyatlarıdır ve mülkün satın alınmasına ilişkin maliyetler (ITP veya KDV, noter masrafları, kayıt masrafları vb.) dahil değildir. Neden farklı web sitelerinde farklı fiyatlar var?

- Uygun fiyatlar
- Yüksek kalite
- Çevre dostu
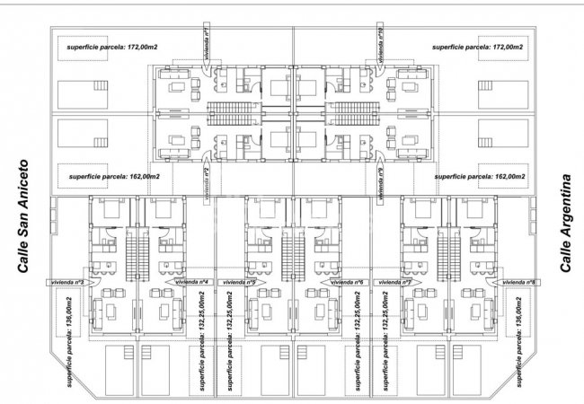
Murcia San Javier'de Çağdaş Tasarımlı ve Güzel Konumlu Villalar
İspanya San Javier'de satılık villalar Murcia Özerk Bölgesi'nde yer alan küçük ve sevimli kasabada yer almaktadır. San Javier, yıl boyunca su sporlarının ve sahilin tadını çıkarmak için muhteşem konumdur.
Modern villalar ayrıcalıklı konumda, günlük ve sosyal olanaklara yürüme mesafesinde yer almaktadır. Ayrıca Playa de Colón plajına 1,7 km, Murcia ve Alicante havalimanlarına ise 1 saatten kısa sürüş mesafesindedir.
Villalarda otopark, havuz ve solaryum bulunmaktadır. Havuzlar seramik fayans ile kaplanmıştır.
Çağdaş villalar buzdolabı, indüksiyon ocak, aspiratör, fırın, mikrodalga fırın ve bulaşık makinesinden oluşan tam donanımlı mutfağa sahiptir. Villalarda ayrıca banyolarda yerden ısıtma, yerleşik duş kapısı, saydam veya mat seçenekli duş bulunmaktadır. Her odada televizyon ve telefon altyapısı ve her katta klima bulunmaktadır. Güneş enerjisi sayesinde villalar verimli enerjiye sahiptir.
- Klima
- Balkon
- Panjur
- Jakuzi
- Ankastre Set
- Solaryum
- Teras
- Merkezi Uydu Sistemi
- Beyaz Eşya
- Açık Otopark
- Müstakil Bahçe
- Özel Yüzme Havuzu
- Havalimanı (0-50 Km)
- Plaj (1-5 Km)
- Deniz (1-5 Km)
- Bar / Restoran
- Klima
- Soba

























