Onur Arslan
- SATIŞ TEMSİLCİSİOnur Arslan+34 683 45 86 86+34 951 23 59 59sales@spainhomes.com
Neden farklı web sitelerinde farklı fiyatlar var?
Döviz kurları günlük olarak güncellenmektedir. Beyan edilen fiyatlar başlangıç fiyatlarıdır ve mülkün satın alınmasına ilişkin maliyetler (ITP veya KDV, noter masrafları, kayıt masrafları vb.) dahil değildir. Neden farklı web sitelerinde farklı fiyatlar var?

- Popüler konum
- Özel yüzme havuzu ve otopark
- Şık tasarım
San Pedro del Pinatar'da Olanaklara Yakın Popüler Bölgede 3 Yatak Odalı Villalar
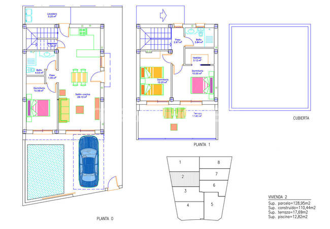
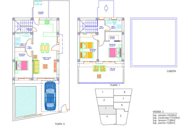
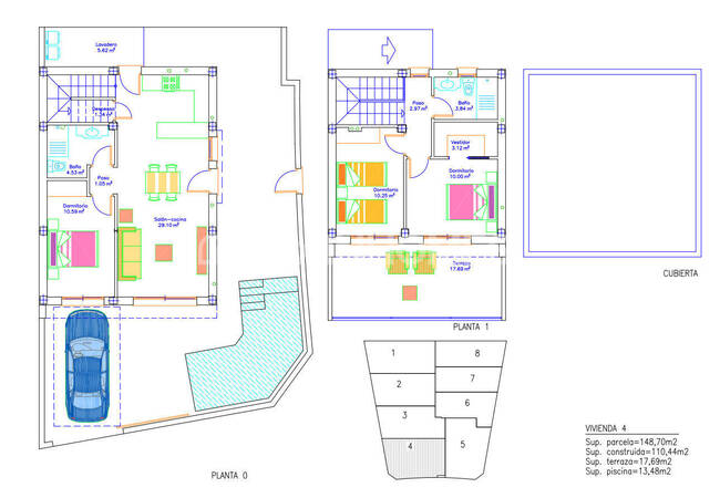
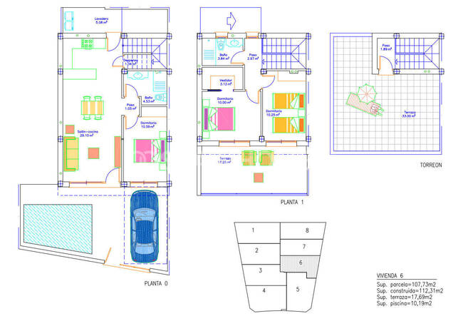
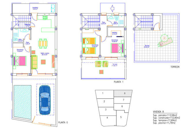
Villaların zemin katında gömme dolaplı yatak odası, duş kabinli ebeveyn banyosu, açık plan mutfak, yemek alanı, çamaşır/depo odası ve oturma odası bulunmaktadır. İkinci katta balkon erişimi bulunan 2 yatak odası mevcuttur. Ana yatak odasında gömme dolap ve duş kabinli ebeveyn banyosu bulunmaktadır. Yarı müstakil villalarda çatı terası bulunurken, müstakil villalarda çatı terasları opsiyoneldir.
Villaların arsa alanları 103 ile 153 m² arasında değişmektedir. Villalarda özel yüzme havuzu, güneşlenme terası ve otopark bulunmaktadır.
Şık villalar San Pedro del Pinatar'da yer almaktadır. San Pedro del Pinatar Murcia ilinde bulunan popüler bir bölgedir. San Pedro del Pinatar; eşsiz plajları, muhteşem doğal alanları ve çeşitli eğlence ve spor faaliyetleri seçenekleriyle ünlüdür.
San Pedro del Pinatar'da satılık villalar günlük olanaklara yürüme mesafesinde, Playa de los Villananitos plajına 3 km, popüler alışveriş merkezi Dos Mares'e 3,3 km, San Pedro limanına 3,6 km, San Javier şehir merkezine 6,2 km, 18 delikli golf sahası Lo Romero'ya 8 km ve Murcia Havalimanı'na 39 km mesafede bulunmaktadır.
- Klima
- Balkon
- Panjur
- Giyinme Odası
- Ankastre Set
- Amerikan Mutfak
- Duşakabin
- Solaryum
- Depo
- Teras
- Merkezi Uydu Sistemi
- Açık Otopark
- Site İçinde
- Müstakil Bahçe
- Özel Yüzme Havuzu
- Havalimanı (0-50 Km)
- Plaj (0-500 M)
- Deniz (0-1 Km)
- Otobüs Terminali
- Mağaza ve Alışveriş Merkezi
- Bar / Restoran
- Klima




















































































